The Plenty 2 by Todd Devine Homes

Snapshot

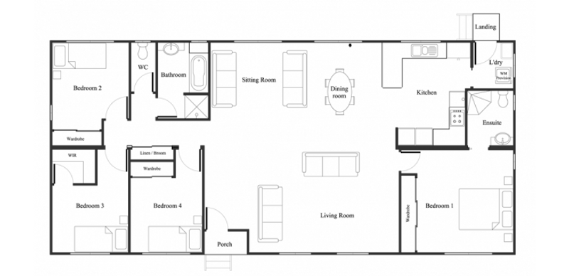
Bed Icon

4 Beds

Bathub Icon

2 Baths

Garage Icon

- Garage

Size Icon

15 squares

Lot Icon

lot width -m

Type of build

Stories

Single storey

Style

Traditional new house design

Home Design

Name Living Alfresco Theatre Study Butlers Lot Width Squares Price
The Plenty 2 2 - - - - - 15 $POA
Request Home Designs
0/0

*Base prices provided by the builder may not include standard building fees or site costs.
Click here now to check the complete build price in your area.

About Todd Devine Homes


Head Office Location:

816 Mountain Highway Bayswater VIC 3153

Request from Home Builder
Enquire about this design